东莞温莎堡小邓总庭院景观
上一个:碧桂园翡翠湾 下一个:东莞温莎堡邓总庭院景观
详情介绍

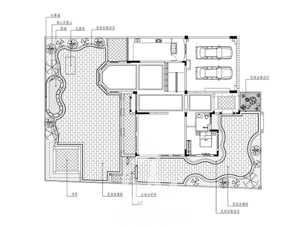
别墅庭院

项目类型:别墅庭院

项目面积:330m2

工程造价:48万(1400元/㎡)

整体设计以硬质铺贴为主,周围蜿蜒布置绿植,让庭院看起来干净整洁、方便维护。简欧风格对铺贴材质和工艺要求较高,拼花铺贴与定制石材工艺是整个庭院的亮点。

实景图

广东仙度园林景观工程有限公司 版权所有
技术支持:东莞网站建设