东莞华桂园
上一个:东莞乐的互动 下一个:东莞奥园观山御墅
详情介绍

别墅花园

项目类型:别墅花园

项目面积:60m2

工程造价:13.8万(2300元/㎡)

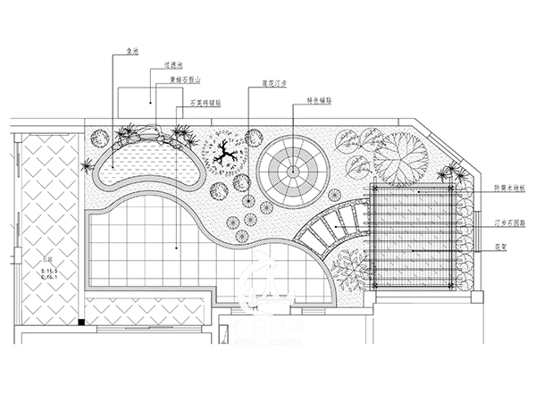
设计说明:中心景观鱼池形状和位置是业主指定的,为了适合鱼池的形状,我们使用了弧形与圆形构图为主。弧形线条灵动,结合圆形平台和踏步,协调美观。庭院体量较小,绿植配置用主景树搭配草地,让庭院感觉不至于拥挤。

  

实景图

广东仙度园林景观工程有限公司 版权所有
技术支持:东莞网站建设